Y43X-10/16 铸铁比例式减压阀
一、铸铁比例式减压阀--概述:
Y43X-10/16 型铸铁比例式减压阀是以法兰连接形式,活塞式结构,阀座密封面材料为橡胶,公称压力为PN10~PN16,阀体材料为铸铁的固定比例式减压阀,主要结构由阀体、进口压盖、活塞、出口压盖及 O 型圈、密封垫等零件组成。Y43X-10、Y43X-16 型铸铁比例式减压阀是利用阀内浮动活塞两端不同的截面积构成压力差从而改变进水与出水的压力状况,达到减压的目的。
二、铸铁比例式减压阀--性能参数:
| 型号 | PN | 工作压力 / MPa | 适用温度 / ℃ | 适用介质 |
| Y43X-10 | 10 | 1.0 | ≤90 | 水、气 |
| Y43X-16 | 16 | 1.6 | ≤90 | 水、气 |
三、铸铁比例式减压阀--零部件材料:
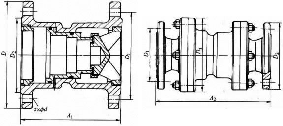
四、Y43X-10 型产品外形结构尺寸(mm):
| 比例 | DN | D | D1 | D2 | D3 | b | z×φd | A |
2:1 3:1 5:2 3:2 4:3 | 25 | 115 | 85 | 65 | 115 | 16 | 4×φ14 | 232 |
| 32 | 140 | 100 | 78 | 140 | 18 | 4×φ18 | 246 |
| 40 | 150 | 110 | 85 | 150 | 18 | 4×φ18 | 256 |
| 50 | 165 | 125 | 100 | 165 | 20 | 4×φ18 | 270 |
| 65 | 185 | 145 | 120 | 185 | 20 | 4×φ18 | 306 |
| 80 | 200 | 160 | 135 | 210 | 22 | 8×φ18 | 320 |
| 100 | 220 | 180 | 155 | 240 | 24 | 8×φ18 | 340 |
| 125 | 250 | 210 | 185 | 275 | 26 | 8×φ18 | 400 |
| 150 | 285 | 240 | 210 | 310 | 28 | 8×φ22 | 429 |
| 200 | 340 | 295 | 265 | 355 | 28 | 8×φ22 | 358 |
4:1 5:1 | 25 | 115 | 85 | 65 | 125 | 16 | 4×φ14 | 232 |
| 32 | 140 | 100 | 78 | 150 | 18 | 4×φ18 | 246 |
| 40 | 150 | 110 | 85 | 155 | 18 | 4×φ18 | 256 |
| 50 | 165 | 125 | 100 | 175 | 20 | 4×φ18 | 270 |
| 65 | 185 | 145 | 120 | 200 | 20 | 4×φ18 | 306 |
| 80 | 200 | 160 | 135 | 230 | 22 | 8×φ18 | 320 |
| 100 | 220 | 180 | 155 | 265 | 24 | 8×φ18 | 340 |
| 125 | 250 | 210 | 185 | 300 | 25 | 8×φ18 | 400 |
| 150 | 285 | 240 | 210 | 350 | 28 | 8×φ22 | 419 |
| 200 | 340 | 295 | 265 | 400 | 28 | 8×φ22 | 458 |
五、Y43X-16 型产品外形结构尺寸(mm):
| 比例 | DN | D | D1 | D2 | D3 | b | z×φd | A |
2:1 3:1 5:2 3:2 4:3 | 25 | 115 | 85 | 65 | 115 | 16 | 4×φ14 | 232 |
| 32 | 140 | 100 | 78 | 140 | 18 | 4×φ18 | 246 |
| 40 | 150 | 110 | 85 | 150 | 18 | 4×φ18 | 256 |
| 50 | 165 | 125 | 100 | 165 | 20 | 4×φ18 | 270 |
| 65 | 185 | 145 | 120 | 185 | 20 | 4×φ18 | 306 |
| 80 | 200 | 160 | 135 | 210 | 22 | 8×φ18 | 320 |
| 100 | 220 | 180 | 155 | 240 | 24 | 8×φ18 | 340 |
| 125 | 250 | 210 | 185 | 275 | 26 | 8×φ18 | 400 |
| 150 | 285 | 240 | 210 | 310 | 28 | 8×φ22 | 429 |
| 200 | 340 | 295 | 265 | 355 | 30 | 12×φ22 | 358 |
4:1 5:1 | 25 | 115 | 85 | 65 | 125 | 16 | 4×φ14 | 232 |
| 32 | 140 | 100 | 78 | 150 | 18 | 4×φ18 | 246 |
| 40 | 150 | 110 | 85 | 155 | 18 | 4×φ18 | 256 |
| 50 | 165 | 125 | 100 | 175 | 20 | 4×φ18 | 270 |
| 65 | 185 | 145 | 120 | 200 | 20 | 4×φ18 | 306 |
| 80 | 200 | 160 | 135 | 230 | 22 | 8×φ18 | 320 |
| 100 | 220 | 180 | 155 | 265 | 24 | 8×φ18 | 340 |
| 125 | 250 | 210 | 185 | 300 | 26 | 8×φ18 | 400 |
| 150 | 285 | 240 | 210 | 350 | 28 | 8×φ22 | 419 |
| 200 | 340 | 295 | 265 | 400 | 30 | 12×φ22 | 458 |
