Z40H、Z40Y、Z40W型PN100、PN160钢制楔式闸阀
一、产品概述
Z41H、Z41Y、Z41W等型号,这是国家定型的一类阀门,结构复杂,体积较大,工艺要求严格,生产成本相对较高。耐压性能优异,能抵御高压、大流量的介质侵蚀和冲击。公称压力高,公称通径大,承受的压力范围广。适用于低中压、小口径的工作环境。一般适用于一些低压、低流量的介质控制,如给水、暖通、空调等行业。
二、产品特点
型号:Z41H、Z41Y、Z41W | 品牌:网野 |
驱动方式:手动 | 连接形式:法兰 |
主体材料:碳钢 | 公称通径:50-300mm |
3C阀门类别:工业 | 适用介质:水 |
密封形式:软密封型 | 标准:国标 |
三、产品采用标准
设计与制造:API600 API6D GB12234
法兰尺寸:ANSIB16.5 JB/T79 GB9113
压力温度:ANSIB16.34 JB/T74 GB9131
结构长度:ANSIB16.10 GB12221
对焊连接尺寸:---
检验与试验:API598 JB/T9092 GB13927
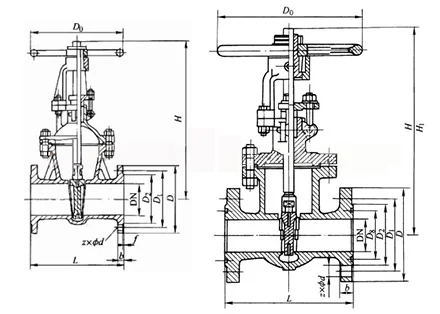
四、主要外形尺寸
Z40H、Z40Y、Z40W 型 (PN100) 钢制楔式闸阀外形及结构尺寸 |
DN | L | D | D1 | D2 | D8 | b | z×ød | H | H1 | D0 | 重量 / kg |
25 | 210 | 135 | 100 | 78 | 501 | 24 | 4×ø18 | 310 | — | — | 13 |
32 | 230 | 150 | 110 | 82 | 65 | 24 | 4×ø23 | 320 | — | — | 20 |
40 | 240 | 165 | 125 | 95 | 75 | 26 | 4×ø23 | 360 | — | — | 60 |
50 | 250 | 195 | 145 | 112 | 85 | 28 | 4×ø25 | 490 | 558 | 360 | 50 |
65 | 280 | 220 | 170 | 138 | 110 | 32 | 8×ø25 | 540 | 622 | 400 | 70 |
80 | 310 | 230 | 180 | 148 | 115 | 34 | 8×ø25 | 572 | 671 | 400 | 100 |
100 | 350 | 265 | 210 | 172 | 145 | 38 | 8×ø30 | 573 | 671 | 400 | 110 |
125 | 400 | 310 | 250 | 210 | 175 | 42 | 8×ø34 | 744 | 892 | 560 | 180 |
150 | 450 | 350 | 290 | 250 | 205 | 46 | 12×ø34 | 800 | 972 | 560 | 250 |
200 | 550 | 430 | 360 | 312 | 265 | 54 | 12×ø41 | 800 | 972 | 560 | 360 |
250 | 650 | 500 | 430 | 382 | 320 | 60 | 12×ø41 | 1050 | 1305 | — | — |
300 | 750 | 585 | 500 | 442 | 375 | 70 | 16×ø48 | 1200 | 1505 | — | — |
【产品外形及结构尺寸 (PN160)】
Z40H、Z40Y、Z40W 型 (PN160) 钢制楔式闸阀外形及结构尺寸 |
DN | L | D | D1 | D2 | D8 | b | z×ød | H | H1 | H0 | 重量 / kg |
15 | 170 | 110 | 75 | 52 | 35 | 24 | 4×ø18 | 230 | 250 | 200 | 7 |
20 | 190 | 130 | 90 | 62 | 45 | 26 | 4×ø23 | 260 | 288 | 200 | 10 |
25 | 210 | 140 | 100 | 72 | 50 | 28 | 4×ø23 | 280 | 310 | 280 | 14 |
32 | 230 | 165 | 115 | 85 | 65 | 30 | 4×ø25 | 312 | 350 | 320 | 21 |
40 | 260 | 175 | 125 | 93 | 75 | 32 | 4×ø27 | 350 | 395 | 320 | 26 |
50 | 300 | 215 | 165 | 132 | 95 | 36 | 8×ø25 | 512 | 612 | 360 | 73 |
65 | 360 | 245 | 190 | 152 | 110 | 44 | 8×ø30 | 560 | 677 | 360 | 110 |
80 | 390 | 260 | 205 | 168 | 130 | 46 | 8×ø30 | 585 | 686 | 400 | 141 |
100 | 450 | 300 | 240 | 200 | 160 | 48 | 8×ø34 | 631 | 751 | 450 | 185 |
125 | 525 | 355 | 285 | 238 | 190 | 60 | 8×ø41 | 723 | 868 | 560 | 320 |
150 | 600 | 390 | 318 | 270 | 305 | 66 | 12×ø41 | 820 | 997 | 640 | 462 |
200 | 750 | 480 | 400 | 245 | 265 | 78 | 12×ø48 | 990 | 1224 | 720 | 711 |
