上海网野阀门制造有限公司
产品中心PRODUCT SHOW

致力于产品的良好用户体验、有效的网络营销效果而努力

Q347H-16C 涡轮法兰固定球直通流道硬密封铸钢(WCB)球阀

  • Q347H硬密封锻钢固定球阀广泛用于石油、天然气、煤炭和矿石的开采、提炼加工和管道输送系统中;化工产品、医药和食品生产中;水电、火电和核电的电力生产系统中;城市和工业企业的给排水、供热和供气系统中。
立即咨询
全国热线135 2453 5400

详情介绍

Q347H-16C 涡轮法兰固定球直通流道硬密封铸钢(WCB)球阀


概述

固定球阀的球体,采用上、下两根阀杆固定,工作时,流体压力不会使球体向阀座移动,阀座不会承受过大压力而变形。阀杆部份设有自润滑轴承,减少磨擦,开关扭距小,两阀座均采用弹簧设预紧。密封采用聚氟乙烯镶入钢圈内,钢圈后部设有弹簧,保证阀座紧贴球体。当阀门中腔压力异常升高超过弹簧顶紧力,阀座后退脱离球体,达到自动泄压效果,压后阀座自动复位。结构的先进性使固定球阀的密封性能稳定操作省力,使用寿命长,极适用于长输管线和一般管线。

 

Summary

The sphere of Q47 type standing ball valve is fixed with upper and lower valve stems. When it works, for fluid pressure is unable to make sphere move towards valve base, the valve base won't be deformed for enduring over pressure.  There is self-lubricating bearing seton the part of valve stem to reduce friction, and its switch-torque is small. Both valve bases are pertensioned  by setting spring. Referring to sealing, adopt the way to inset polytetrafluoroethylene into steel-ring  with a spring on  its  rear end, which can ensure valve base cling to sphere. When the cavity pressure in valve transnormally excesses spring tension, valve base will back off and separate from sphere to get the effect of automatic pressure release.The valve base will automatically reset after being pressed.  Thanks to advanced structure, the standing ball valve has stable sealing performance, labor-saved operation and long using life. It is es-pecially applicable for long conveymg pipeline and general pipeline.

 

 

结构·功能·特点Construction.Functio.Features.

 

全通径设计

按照客户的要求可以提供全通径

或缩径阀门,全通径阀门具有与管子

内径完全一致的通道直径,减少涡流

便于清扫管道。

Full bore design

According to the customer's

demand,the fullbore orthe redu-

ced bore can be provided. The f-

ull bore valve has the diameter of

channel completely equalto the

 in ner diameter of pipe to facilitat-

e to clean the pipe.

 

阻塞与排泄功能

固定球阀采用弹簧预紧,阀座密

封为双活塞.利用话塞原理密封.上

下游侧的阀座使流体阻断.阀体中腔

装放空阀排空,阀底装有排污阀排污,

Block & Bleed Function

 Fixed ball valve adopts spri-

ng to pretighten.And seat sealis

double pistons.lt adopts piston p-

rinciple to seaI.Upstr-Eam and d-

ownstream seats make fluid stop.

And the emptying valve installed

on the middle cavity is used to e-

mpty and the blowdown valve in-

stalled at the bottom of valve to c-

lear off dirt to facili-tate to clean

the pipe.

 

 

 

 

 

 

防火结构

万一发生火灾或异常升温使PT

FE软化烧损时,阀座支承圈防火密封

面可以和球体接触.起到密封作用且

符合AP1607AP16FA

Fire-proof structure

When the fire happens orthe

temperatue unusually rises to m-

ake PTFE soften to damage.the

fireproof sealsurface of seat su-

pported circle can contact with b-

all to have seal function.This co-

nforms to therequirements of A-

Pl 607 and AP16FA.

 

防静电设计

采用铬镍不锈钢的弹簧和小球使

球体、阀杆和阀体之间相互导电,从

而把静电完全释放。

Anti-static design

Chrome and nickelstainless-

teel spring and small ball are ad-

opted to make electroconductive

among ball. Stem and body to co-

mpletely releasestatic.

 

 

设计、制造标准

1、设计、制造按GB/T12237-89 

2、连接法兰JB/T 79-94 

3、阀门检查和试验按GB/T13927-89   

Standard for design and manufacture

1DesignManafacfure According to GB/T 12237-89

2FlangeDimensionAccording tojBfT 79-94

3valve Check and Test According to GB/T 13927-89

 

                           

主要零件材料Mater for main parts

公称压力Nominal    PN(MPa)pressura

   Product Type










主要零件材料

Parts

Material

阀体

Body

WCB

ZG1Cr18Ni9Ti

CF8

CF3

ZG1Cr18Ni-

12Mo2Ti

CF8M

CF3M

球体、阀杆

Ball,Stem

2Cr13

1Cr18Ni9Ti

0Cr19Ni9-

304

00Cr19Ni11-

304L

1Cr18Ni12-

Mo2Ti

0Cr17Ni12-

Mo316

00Cr19Ni14-

Mo2316L

阀座

Seat

四氟乙烯、对位聚苯









适用工况

Applicable

Condrtion

适用介质

Applicable mediumt

水、蒸汽、油品等

WaterSteamOil

硝酸等腐蚀性介质

Netricalid Corrosive

强氧化性介质

Oxgen medium

醋酸等腐蚀性介质

Acetil acid coirosive medium

尿素等腐蚀性介质

Urea corrosive medium



工作温度(

Working

Temperatdre

-29~150(四氟乙烯)    -28~300(对位聚葳)   









试验压力

MPa

Test pressure

壳体

Shell

1.5









密封(液)

Seslliquid

1.1









密封(气)

Seslgas

0.6MPa









蜗轮传动  Turbine

在手动型号的Q后插“3”表示,示例:Q347F-16C Represeting by“3”inserted befere manual“Q”









气动    Pheumatic

在手动型号的Q后插“6”表示,示例:Q647F-16C Represetingby“6”inserted befere manual“Q”









电动    Electric

在手动型号的Q后插“9”表示.示例:Q947F-16C Represeting by“9”inserted befere manual“Q”









附注    Remark

选用缩径球阀,在公祢通径数值后加S表示,示例:DN100S

Selecting reduce Bore,insert“S”affer figure of DN.









如用户选用美标的阀门请在型号前加A.选用的压力为150Lb、300Lb、600Lb。

 

 

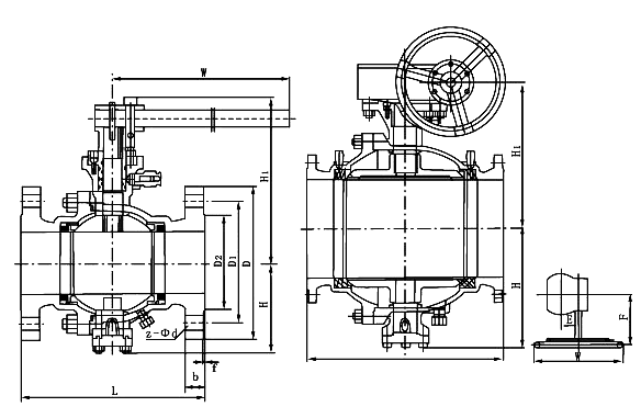
 image.png

PN1.6MPa主要连接及外形尺寸Main connection and extemal dimensinos(mm)

DN

D1

L

H

手动Manual operaten

电动

Electromotor

Operated

气动

Pneumatic

Operated

法兰连接尺寸

Flange connection dimension







H1

E

F

W

Wt(kg)

H2

L1

H3

L2

D

D1

D2

b

f

Z--φd

25

25

165

50

75



160

4.5



215

200

115

85

65

14

2

4-φ14

32

32

180

55

85



160

5.7



240

270

135

100

78

16

2

4-φ18

40

40

190

80

95



230

7.0



264

270

145

110

85

16

3

4-φ18

50

50

216

102

107



230

12



274

270

160

125

100

16

3

4-φ18

65

65

241

114

125



400

16



379

405

180

145

120

18

3

4-φ18

80

80

283

127

152



400

22



389

405

195

160

135

20

3

8-φ18

100

100

305

152

178



650

35



479

576

215

180

155

20

3

8-φ18

125

125

356

184

300



1050

58



552

576

245

210

185

22

3

8-φ18

150

150

394

219

330



1050

74

554

235

666

776

280

240

210

24

3

8-φ23

200

200

457

273

398

116

350

600

205

600

235

736

776

335

295

265

26

3

12-φ23

250

250

533

360

495

116

350

600

322

652

235

926

776

405

355

320

30

3

12-φ25

300

300

610

395

580

171

400

800

460

760

259

1059

1060

460

410

375

30

4

12-φ25

350

337

686

430

625

171

420

800

576

770

400

1127

1060

520

470

435

34

4

16-φ25

400

387

762

470

670

257

400

800

864

830

400

1393

1360

580

525

485

36

4

16-φ30

450

438

864

550

698

257

420

800

1280

-

-

1468

1360

640

585

545

40

4

20-φ30

500

489

914

580

840

257

400

800

1600

940

410

1538

1360

705

650

608

44

4

20-φ-34

600

591

1067

700

1050

150

410

800

3540

1020

410

1370

2840

840

770

718

48

5

20-φ41

700

686

1245

800

1100

83

650

800

4500

1115

410

1450

2840

910

840

788

50

5

24-φ41

 

PN2.5MPa主要连接及外形尺寸Main connection and extemal dimensinos(mm)

DN

D1

L

H

手动Manual operaten

电动

Electromotor

Operated

气动

Pneumatic

Operated

法兰连接尺寸

Flange connection dimension







H1

E

F

W

Wt(kg)

H2

L1

H3

L2

D

D1

D2

b

f

Z--φd

25

25

165

50

75



160

4.5



215

200

115

85

65

16

2

4-φ14

32

32

180

55

85



160

5.7



240

270

135

100

78

18

2

4-φ18

40

40

190

80

95



230

7.0



264

270

145

110

85

18

3

4-φ18

50

50

216

102

107



230

15



340

405

160

125

100

20

3

4-φ18

65

65

241

114

125



400

24



379

405

180

145

120

22

3

8-φ18

80

80

283

127

152



400

30



452

574

195

160

135

22

3

8-φ18

100

100

305

152

178



650

55



479

574

230

190

160

24

3

8-φ23

125

125

356

184

300



1050

87



646

756

270

220

188

28

3

8-φ25

150

150

394

219

330



1050

118

235

74

666

756

300

250

218

30

3

8-φ25

200

200

457

273

398

116

350

600

255

235

350

814

1060

360

310

278

34

3

12-φ25

250

250

533

360

495

116

350

600

370

400

350

1002

1060

425

370

332

36

3

12-φ30

300

300

610

395

580

171

400

800

533

400

420

1059

1060

485

430

390

40

4

16-φ30

350

337

686

430

625

171

420

800

640

410

420

1150

1360

550

490

448

44

4

16-φ34

400

387

762

470

670

257

400

800

1030

410

400

1205

1360

610

550

505

48

4

16-φ34

450

438

864

550

698

257

420

800

1542

-

-

1250

2840

660

600

555

50

4

20-φ34

500

489

914

580

840

257

400

800

2100

420

400

1295

2840

730

660

610

52

4

20-φ41

600

591

1067

700

1050

150

410

800

4200

690

410

1390

3300

840

770

718

56

5

20-φ41

700

686

1245

800

1100

83

650

800

5300

690

650

1470

3300

955

875

815

60

5

24-φ48

 

PN4.0MPa主要连接及外形尺寸Main connection and extemal dimensinos(mm)

DN

D1

L

H

手动Manual operaten

电动

Electromotor

Operated

气动

Pneumatic

Operated

法兰连接尺寸

Flange connection dimension









H1

E

F

W

Wt(kg)

H2

L1

H3

L2

D

D1

D2

D6

b

F1

Z--φd

f

25

25

165

50

75



160

4.5



200

200

115

85

65

58

16

4

4-φ14

2

32

32

180

55

85



160

5.7



270

270

135

100

78

66

18

4

4-φ18

2

40

40

190

80

95



230

7.0



270

270

145

110

85

76

18

4

4-φ18

3

50

50

216

102

107



230

15



405

270

160

125

100

88

20

4

4-φ18

3

65

65

241

114

125



400

24



405

405

180

145

120

110

22

4

8-φ18

3

80

80

283

127

152



400

30



574

405

195

160

135

121

22

4.5

8-φ18

3

100

100

305

152

178



650

55



574

574

230

190

160

150

24

4.5

8-φ23

3

125

125

381

184

300



1050

87



756

574

270

220

188

176

28

4.5

8-φ25

3

150

150

403

219

330



1050

118

235

74

756

756

300

250

218

204

30

4.5

8-φ25

3

200

200

502

273

398

116

350

600

255

235

350

1060

756

375

320

282

260

38

4.5

12-φ30

3

250

250

568

360

495

116

350

600

370

400

350

1060

756

445

385

345

313

42

4.5

12-φ34

3

300

300

648

395

580

171

400

800

533

400

420

1060

1060

510

450

408

364

46

4.5

16-φ34

4

350

337

762

430

625

171

420

800

640

410

420

1360

1060

570

510

465

422

52

5

16-φ34

4

400

387

838

470

670

257

400

800

1030

410

400

1360

1360

655

585

535

474

58

5

16-φ41

4

450

438

914

550

698

257

420

800

1542

-

-

2840

1360

680

610

560

524

60

5

20-φ41

4

500

489

991

580

840

257

400

800

2100

420

400

2840

1360

755

670

612

576

62

5

20-φ48

4

600

591

1143

700

1050

150

410

800

4200

690

410

3300

2840

890

795

730

678

62

6

20-φ54

5

700

686

1346

800

1100

83

650

800

5300

690

650

3300

2840

995

900

835

768

68

6

24-φ54

5

 

PN6.4MPa主要连接及外形尺寸Main connection and extemal dimensinos(mm)

DN

D1

L

H

手动Manual operaten

电动

Electromotor

Operated

气动

Pneumatic

Operated

法兰连接尺寸

Flange connection dimension









H1

E

F

W

Wt(kg)

H2

L1

H3

L2

D

D1

D2

D6

b

F1

Z--φd

f

50

50

292

114

108

116

350

600

23



340

405

175

135

105

88

26

4

4-φ23

3

65

65

330

124

155

116

350

600

35



-

-

200

160

130

110

28

4

8-φ23

3

80

80

358

133

197

116

350

600

49



-

-

210

170

140

121

30

4

8-φ23

3

100

100

406

159

235

116

350

600

91



479

576

250

200

168

150

32

4.5

8-φ25

3

150

150

495

250

300

116

350

600

192

554

235

666

756

340

280

240

204

38

4.5

8-φ34

3

200

200

597

294

374

171

420

800

355

574

235

895

1060

405

345

300

260

44

4.5

12-φ34

3

250

250

673

395

445

171

420

800

640

731

400

1002

1060

470

400

352

313

48

4.5

12-φ41

3

300

300

762

445

512

257

400

800

880

771

400

1059

1360

530

460

412

364

54

4.5

16-φ41

4

350

337

826

500

550

257

400

800

1100

867

410

1160

1360

595

525

475

422

60

5

16-φ41

4

400

387

902

530

615

257

400

800

1540

805

410

1250

2840

670

585

525

474

66

5

16-φ48

4

500

489

1054

660

810

150

410

800

2800

979

420

1320

2840

800

705

640

576

70

5

20-φ54

4

600

591

1232

800

1010

83

650

800

5300

1085

690

1470

3300

930

820

750

678

76

6

20-φ58

5

 

 

 


标签:

135 2453 5400

全国服务热线

Copyright © 2024 上海网野阀门制造有限公司 All Rights Reserved. 沪ICP备17008218号
上海网野阀门制造有限公司扫一扫咨询微信客服
在线客服
服务热线

服务热线

135 2453 5400

微信咨询
上海网野阀门制造有限公司
返回顶部