YQ98001 过滤活塞式可调减压阀
一、YQ98001型过滤活塞式可调减压阀--原理:
YQ98001型过滤活塞式可调减压阀由比托管传递压差信号给流导阀, 限流阀和针阀执行两路控控制. 来控制主阀活塞上腔的压力. 通过限流导阀调节摞栓的调节. 使阀后流量达到设定值; 活塞下腔有节流孔与下游相通. 可绶冲阀门的关闭, 主阀两端压力差是阀门启. 闭的驱动能源。主要用于空调. 给排水. 消防和各类工矿企业等供水管网口需要过滤而且对流量实现控制的场所和工况。能将上游压力降低至所设置的下游压力,无论怎样改变上游的压力和流量,其预先设定的下游压力均能够保持不变。
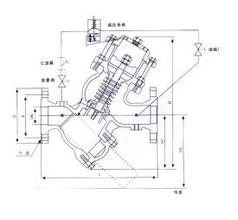
产品外观图


二、YQ98001型过滤活塞式可调减压阀--连接尺寸:

DN | 50 | 65 | 80 | 100 | 125 | 150 | 200 | 250 | 300 | 350 | 400 |
L | 250 | 280 | 335 | 380 | 425 | 480 | 750 | 660 | 740 | 810 | 860 |
三、YQ98001型过滤活塞式可调减压阀--特点:
1.毕托管向极敏感的限流导阀传递压信号, 无孔板孔口节流, 无压力损失, 节能.
2.限流导阀中有极灵敏的弹簧对流量进行调节, 操作简单而且准确.
3.Y形宽体阀腔,流阻小.抗汽蚀性强.
日介质自身压力自控, 无需外供驱动源.
5.主阀体的进口法兰与阀座之间设了过滤器, 节省投资成本和安装费用.
6.内外表面均喷浍环保涂层.确保产品的防府蚀及安全。
五、YQ98001型过滤活塞式可调减压阀--主要参数:
| 公称压力PN (MPa) | 1.6 | 2.5 |
| 公称通径DN (mm) | 40 50 65 80 100 150 200 250 300 |
| 强度试验压力:(MPa) | 2.40 | 3.75 |
| 密封试验压力:(MPa) | 1.76 | 2.75 |
| 流量调节范围 | 05 ~ 5m/S |
| 适用温度 | 0 ~ 100℃ |
| 环境温度 | -30 ~ 350℃ |
| 适用介质 | 水 |
六、YQ98001型过滤活塞式可调减压阀--安装方法及连接要求:
一、根据工况的减压特性,必须在该阀前安装 闸阀;
二、方便日后对该阀进行检修工作.必须在减压阀后安装可曲绕软连接;
三‘最佳安装方式为卧式,其它方位也可以接受;
四、必须留出足够的工作空间方便检修;
五、吊装时采用有效措施进行.也可利用该阀吊环进行。